聲明:本分析不針對任何具體問題,僅僅是向各位讀者匯報一下我們課題組在倒塌過程可視化模擬方法上取得的一些研究進展,不作為任何事件分析的基礎和依據。
合理、真實的建筑倒塌廢墟虛擬場景構建對災害應急和救援訓練至關重要。有限元方法模擬結構強非線性、超大變形倒塌過程計算成本高,且難以考慮塊體碰撞。而基于物理引擎的倒塌模擬方法雖然具有結構倒塌的大變形模擬優勢,但是在結構小變形階段計算不準確。因此,我們提出了聯合有限單元法與物理引擎的建筑倒塌及廢墟場景模擬框架——在小變形階段使用有限元程序模擬,在大變形階段使用基于物理引擎的方法進行模擬,技術細節詳見:(Hybrid framework for simulating building collapse and ruin scenarios using finite element method and physics engine. Applied Sciences, 2020, 10(12), 4408. http://doi.org/10.3390/app10124408)

圖1 本研究提出的聯合有限單元法與物理引擎的建筑倒塌及廢墟場景模擬框架
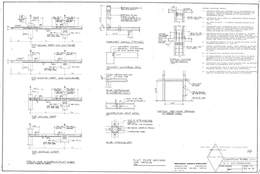
基于上述技術,我們首先調研了某12層公寓的設計圖紙,采用圖1的方法進行了建模和計算。關于一些構件和節點強度的詳細計算內容,我們公眾號后續會陸續發布。



圖2 某12層公寓建筑圖紙
由于本研究重點是倒塌過程的可視化模擬,所以我們對倒塌的起因進行簡化處理,假定局部立柱破壞。進而可以得到其倒塌過程如動畫所示。(現場視頻來源:WSVN 7 News)
最終形成的模擬倒塌廢墟與實際倒塌廢墟的對比如圖3所示。








(a) 實際廢墟
(b) 模擬廢墟
圖3 模擬廢墟與實際廢墟的對比
再次強調,以上分析不針對任何具體問題,僅僅是向大家介紹一下我們課題組開發的倒塌過程可視化模擬方法。不作為任何事件分析的基礎和依據。
注:部分圖片和視頻來源于網絡,主要用于學術交流,如侵刪。



















